Leave a Message

By providing your contact information to Chrissie Goodrum, your personal information will be processed in accordance with Chrissie Goodrum's Privacy Policy. By checking the box(es) below, you consent to receive communications regarding your real estate inquiries and related marketing and promotional updates in the manner selected by you. For SMS text messages, message frequency varies. Message and data rates may apply. You may opt out of receiving further communications from Chrissie Goodrum at any time. To opt out of receiving SMS text messages, reply STOP to unsubscribe.

Thank you for your message. I will be in touch with you shortly.

Picturesque Colonial: Located in the HEART of Raspberry Falls

Picturesque Colonial: Located in the HEART of Raspberry Falls

The neighborhood of Raspberry Falls was founded in 1994, the year I graduated from college. Over the course of about 20 years, the community would grow and expand to just over 200 homes, interspersed among an award winning 18-hole golf course, designed by Gary Player. 41741 Raspberry Drive, on the market for $1,595,000, is a "Glenmore" model home built by the luxury division of Van Metre, Marquis Custom Homes.

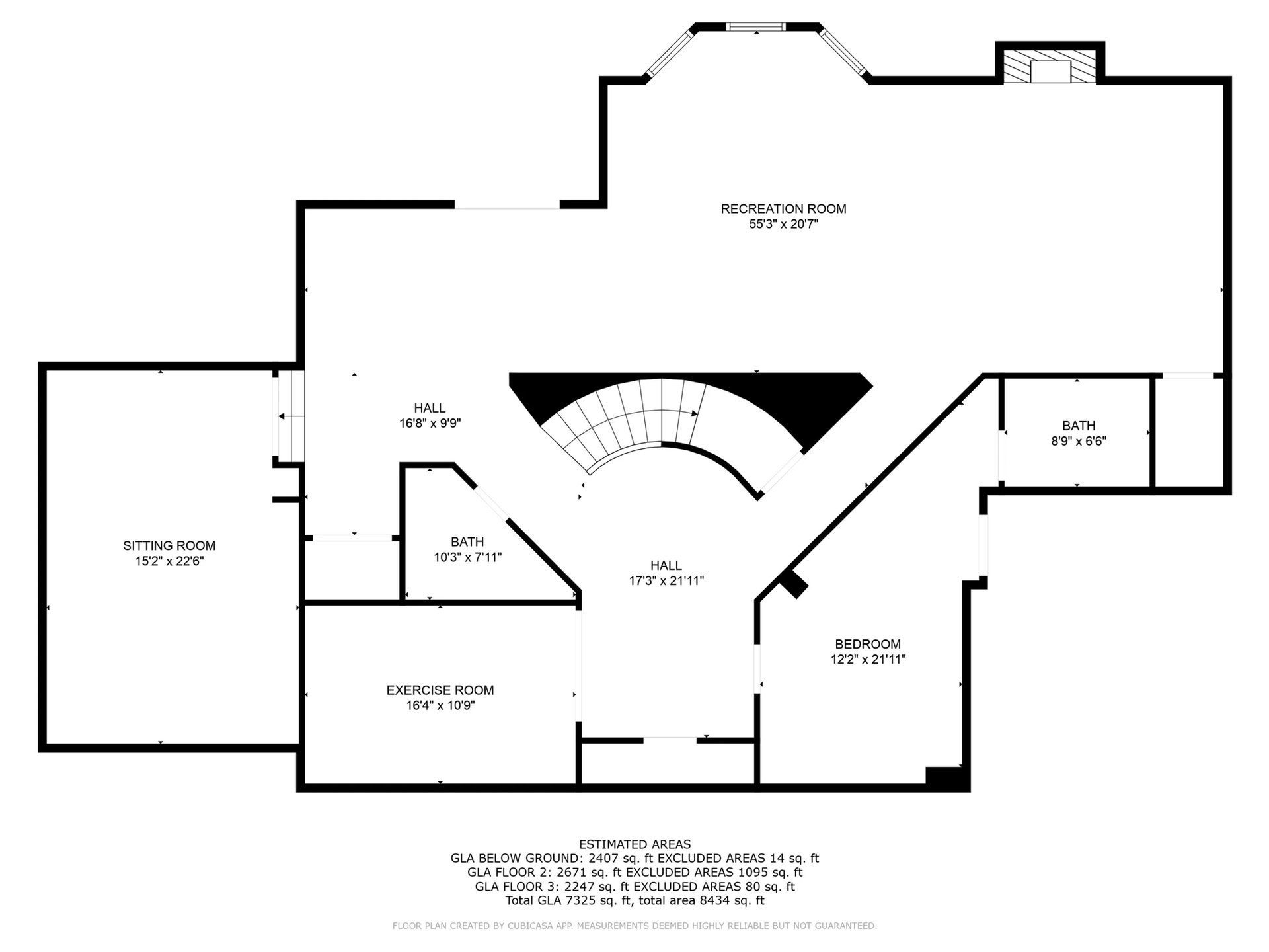
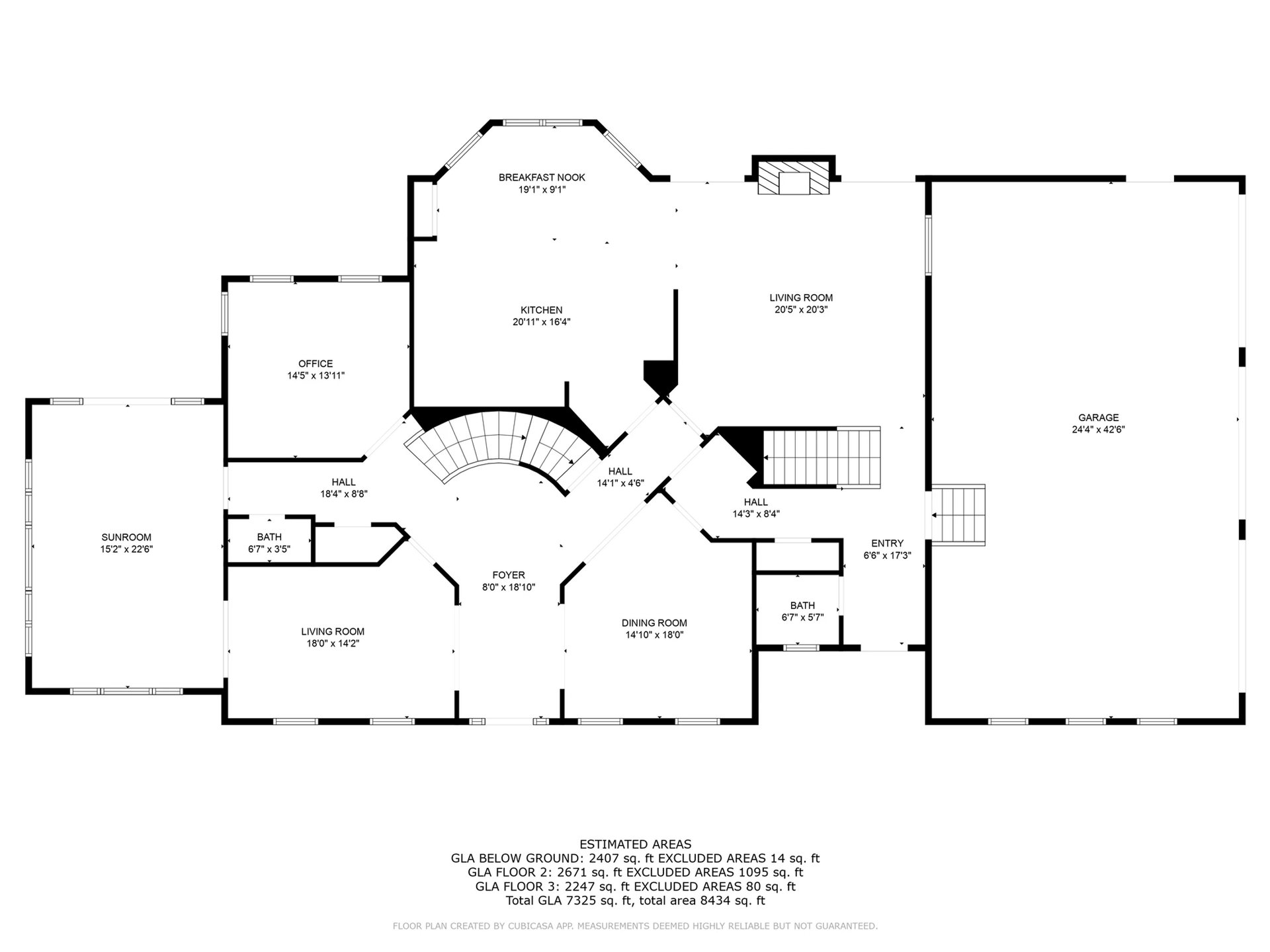
There are 10 Glenmore model homes inside of the neighborhood (the most recent Glenmore model home to sell here was 41334 Raspberry Drive, which closed on 8/9/2024). Located approximately one mile away from the entrance of the community, this picture perfect colonial is in close proximity to the 15th hole of the Raspberry Falls Golf & Hunt Club, and is less than a half mile away from the golf course driving range, neighborhood swimming pool, and community tennis courts. This particular model is approximately 8,600 SQFT in size, includes two front and two back doors, bathrooms for each upstairs bedroom (there are 4) and a finished basement with plenty more space for homeowners and guests (floor plan below).

Mature trees and thoughtful landscaping adorn this elegant property, which is situated on a lot of just under .75 acres. I love the three-car side load garage, and paved stone walkway leading up to the expansive front porch. The fenced in backyard includes a beautiful deck, and another picturesque stone walkway and sitting area, offering a relaxing place to cozy up by an outdoor firepit. The generous sized flat backyard provides endless opportunities for pickup soccer, lacrosse, cornhole, and football games. Dog owners can let their pups outside to play for hours and lounge in afternoon sunshine.

Inside, the home's finishes are elegant and timeless - crown molding, luxury hardwoods, beautiful tile, and a curved dramatic staircase welcome you. The gourmet kitchen includes top shelf Viking appliances, two sinks, and abundant counterspace, for the most ambitious home chef. Upstairs, the primary bedroom has French doors that open to a balcony overlooking the backyard, and the owners have recently replaced the bedroom carpeting not only in this room, but in each of the upstairs bedrooms.

In addition to new bedroom carpeting, the current owners of this amazing property have recently replaced their roof and gutters (2024), replaced furnace and air conditioning units (2024), installed a radon remediation system (2025), and replaced various major appliances (refrigerator, kitchen disposal, thermostats, clothes washer, clothes dryer, dishwasher) within the past 4 years. Individual buyers may schedule tours beginning Friday, March 21, and public open houses have been scheduled for the weekend of March 22-23. For more information about this property, including a comprehensive list of vendors the owners have entrusted to maintain their home, please reach out! Not only do I represent the sellers, but I also own a home in the community and have been selling homes here since 2016.

For more information about Raspberry Falls, check out their HOA Website's Page. Additionally, there is a history page worth checking out, courtesy of Raspberry Plain Manor, a wedding venue that shares an entrance with the neighborhood from Route 15. Loudoun County was founded in 1757, and is named for John Campbell, Fourth Earl of Loudoun and the governor general of Virginia from 1756 to 1759. For more than two centuries, agriculture was the dominant way of life in Loudoun County, which had a relatively constant population of about 20,000. That began to change in the early 1960s, when Dulles Airport was built in the southeastern part of the county. The airport attracted new businesses, workers and their families to the area. Loudoun County became synonymous with technology in the late 1990's and early 2000's, fueled by the national internet boom and establishment of the Metropolitan Area Exchange-East (MAE-East) as a national internet hub. Today, there are more than 440,000 people who live in Loudoun County. Raspberry Falls is part of the Catoctin District.

Picturesque Colonial: Located in the HEART of Raspberry Falls
Picturesque Colonial: Located in the HEART of Raspberry Falls
Picturesque Colonial: Located in the HEART of Raspberry Falls
Picturesque Colonial: Located in the HEART of Raspberry Falls
Picturesque Colonial: Located in the HEART of Raspberry Falls
Picturesque Colonial: Located in the HEART of Raspberry Falls
Picturesque Colonial: Located in the HEART of Raspberry Falls
Picturesque Colonial: Located in the HEART of Raspberry Falls

Elevating Every Experience

Delivering seamless real estate solutions with care and precision, backed by deep market knowledge, trusted guidance, and a commitment to making every move a rewarding one.

Follow Me on Instagram